• +7 (985)112-13-89, +7(916)681-59-23
  • 9851121389@mail.ru
Главная
Проекты
Портфолио
Контакты
Еще
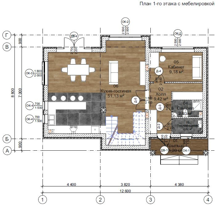
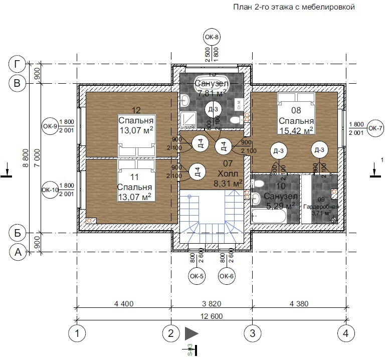
Строительство дома из газоблоков Исткульт
  • +7 (985)112-13-89, +7(916)681-59-23
  • 9851121389@mail.ru